Hochbau Öffentlich
Hochbau privat
Sakralbauten
Einrichtungen
Aussengestaltung
Raumordnung
Aktuelles / News
Kontakt
Projektdetails
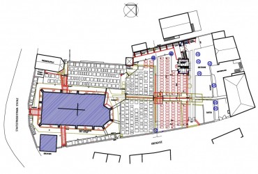
Erweiterung des Friedhofes Terlan
Gesamte Projektierung, Kostenvoranschläge und Ausschreibungen, Bauleitung und Bauabrechnungen
Bauzeit: 1999-2001
Baukosten: € 620.000
«
Projektliste
Italiano
News
09.11.2012
Mehrzweckraum (Raum des Lichts) Kollmann-Barbian
Umbau
09.11.2012
Altersheim Leifers
Umbau und Erweiterung
09.11.2012
Biomasse-Heizkraftwerk Laimburg
Neubau
09.11.2012
Bibliothek Terlan
Machbarkeitsstudie
09.11.2012
Grundschule und Bibliothek, Vilpian
Erweiterung
09.11.2012
Wohnhaus Morandell, Kaltern
Energetische Sanierung und Erweiterung
09.11.2012
Büro- und Betriebsgebäude Firma Niederwieser, Leifers
Abbruch und Wiederaufbau
09.11.2012
Wohnanlage für privaten Bauherrn in Siebeneich-Terlan
Vorprojekt
09.11.2012
Bauleitplan Kaltern
Überarbeitung
09.11.2012
Bauleitplan Tramin
Überarbeitung
09.11.2012
Bauleitplan Völs am Schlern
Überarbeitung
09.11.2012
Bauleitplan Welschnofen
Überarbeitung
09.11.2012
Durchführungsplan Historischer Ortskern Zone A5 Oberlana
Überarbeitung
09.11.2012
Durchführungsplan Wohnbau-Auffüllzone Amonn, St.Jakob-Leifers
Ausarbeitung
Webdesign Südtirol, Onlinemarketing
Die EU-Richtlinie 2009/136/EG (E-Privacy) regelt die Verwendung von Cookies, welche auch auf dieser Website verwendet werden! Durch die Nutzung unserer Website oder durch einen Klick auf "OK" sind Sie damit einverstanden.
Weitere Informationen
OK