Projektdetails
Mehrzweckgebäude Vilpian
Das Gebäude birgt auf beengtem Raum (direkt angrenzend Friedhof im Norden und Gasthof Post im Westen) eine Vielzahl an Funktionen.
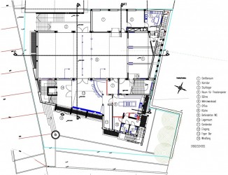
Als zentraler Bereich besteht der Mehrzwecksaal (Größe 11x21m, Höhe 6,5m), welcher einerseits als Turnhalle andererseits für öffentliche Veranstaltungen konzipiert ist (Theater, Bälle, Musik, Versammlungen, usw.). Der Saal verfügt über einen Bühnenraum (Größe 5x10m). Auch die Küche ist in direkter Verbindung angeordnet.
Das Untergeschoss weist die für den Turnsaal/Mehrzweckraum nötigen Umkleideeinheiten, Nebenräume, Magazine, ein großes Musikprobelokal (125m²) und einen Jugendraum (90m²) auf.
Im Obergeschoss befinden sich ein weiterer Versammlungsraum (70m²), ein Lagerraum für die Bühne sowie eine Zuschauergalerie zum Mehrzwecksaal.
Vor dem Gebäude befindet sich der zentrale Dorfplatz. Mit der Kirche samt Friedhof sowie der Schule nebenan bildet dieses neue öffentliche Gebäude das eigentliche Zentrum Vilpians.
Urbanistische Kubatur: 5.092 m³
Unterirdische Kubatur: 1.925 m³
Planung: 2001 bis 2003
Bauzeit: 2004 bis 2005
Baukosten: € 3.600.000
Als zentraler Bereich besteht der Mehrzwecksaal (Größe 11x21m, Höhe 6,5m), welcher einerseits als Turnhalle andererseits für öffentliche Veranstaltungen konzipiert ist (Theater, Bälle, Musik, Versammlungen, usw.). Der Saal verfügt über einen Bühnenraum (Größe 5x10m). Auch die Küche ist in direkter Verbindung angeordnet.
Das Untergeschoss weist die für den Turnsaal/Mehrzweckraum nötigen Umkleideeinheiten, Nebenräume, Magazine, ein großes Musikprobelokal (125m²) und einen Jugendraum (90m²) auf.
Im Obergeschoss befinden sich ein weiterer Versammlungsraum (70m²), ein Lagerraum für die Bühne sowie eine Zuschauergalerie zum Mehrzwecksaal.
Vor dem Gebäude befindet sich der zentrale Dorfplatz. Mit der Kirche samt Friedhof sowie der Schule nebenan bildet dieses neue öffentliche Gebäude das eigentliche Zentrum Vilpians.
Urbanistische Kubatur: 5.092 m³
Unterirdische Kubatur: 1.925 m³
Planung: 2001 bis 2003
Bauzeit: 2004 bis 2005
Baukosten: € 3.600.000
